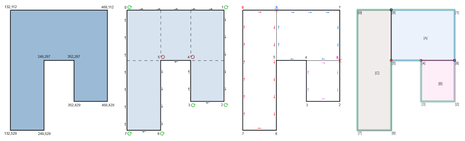
This is a haxe implementation of an algorithm that partitions orthogonal polygons into several small rectangular areas. A more detailed description about the algorithm can be found on my blog.
- traverse the polygon clockwise and find vertices with counterclockwise rotation
- split the graph from those vertices to any direction
- pick a vertex and traverse the adjusted graph clockwise to build your rectangle
runtime:
- multiple platform targets supported
- simple input / output interface
development-time:
- confusing line intersection algorithm
- monster class
